【調整】埼玉県狭山市大字堀兼 約398坪 埼玉県狭山市大字堀兼|20万円の土地|貸地・貸土地・借地・事業用地情報

土地

【調整】埼玉県狭山市大字堀兼 約398坪
お気に入り
賃料 20万円501円 物件番号 stmt2812
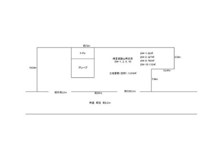
敷金/礼金 2ヶ月/1ヶ月 土地面積 1319m² (公簿) 坪数 399坪
所在地 埼玉県狭山市大字堀兼
この地域周辺の物件を見る
交通
西武新宿線 新狭山 徒歩36分 関越自動車道「三芳スマート」ICまで約7q
ここがおすすめ

・駐車場兼簡易的な事務所としても使用可能
・プレハブあり
・三芳スマートインターまで車15分


  •  -
  •  -
お問い合わせ、資料請求、見学のお申し込みはこちらから

電話をかける(携帯・PHS可)
03-3341-2841
「ホームページを見た」とお伝え下さい。

お問い合わせ番号をお伝えください
stmt2812

お問合せ

おすすめポイント

特徴
  • 駐車場用地
  • 車両置場用地
  • 資材置場用地
  • その他用地
  • 電気
  • 公営水道
  • 浄化槽
  • 側溝
  • 前面道路6m以上
  • 駐車場
  • 駐車スペース有
コメント ・現況優先

物件概要

建築条件 - 土地権利 普通借地権(賃借権) 期間:2年
現況/引渡し 更地/即時 接道状況 接道: 南西 50m 公道 道路幅: 9.2m
私道負担面積 - セットバック -
地勢 平坦 地目 雑種地
用途地域 - 都市計画 市街化調整区域
法令上の制限 - 国土法届出 -
取引態様 仲介
情報更新日 2026年01月06日 次回更新日 2026年01月20日
※各種情報と差異がある場合は現況優先となります
事業用不動産の売買サイト
お問い合わせ、資料請求、見学のお申し込みはこちらから

電話をかける(携帯・PHS可)
03-3341-2841
「ホームページを見た」とお伝え下さい。

お問い合わせ番号をお伝えください
stmt2812

内見予約
お問合せ
  • こちらの物件を見たお客様はこんな物件もチェックしています。
  • お気に入り物件

同じ価格帯の物件はこちら

広さの近い物件はこちら

同じ学区の物件はこちら

電話をかける(携帯・PHS可)
03-3341-2841
「ホームページを見た」とお伝え下さい。

お問い合わせ番号をお伝えください
stmt2812

内見予約
お問合せ

お問い合わせ

お問い合わせ内容
お問合せ内容必須
【備考欄】
詳細な見学ご希望時間、ご質問、ご希望条件などがございましたらお聞かせ下さい。
(2000文字以内)
お客様情報
会社名 / 担当者名必須
連絡先必須 メールアドレス

※ご記入いただいたメールアドレス宛てに、お問合せ内容の確認メールをお送りいたします。
※Yahoo!メールなどのフリーメールをご利用の場合、迷惑メールフォルダに入る場合があります。
 迷惑メールのフォルダ・設定等をご確認下さい。
電話番号
FAX(任意)
※ご入力いただいたお客さまの個人情報は、「個人情報の取扱いについて」に基づき適正に取り扱います。
必ずお読みになり、同意の上お問い合わせください。

お気軽にお問い合わせください

03-3341-2841
物件番号 stmt2812
※「ホームページを見た」
とお伝え下さい。

お役立ち機能

このページを印刷する
貸倉庫・貸工場を探す
お役立ちコラム

カシチ不動産は貸地・貸倉庫・貸工場に
特化した事業用賃貸検索サイトです。

東京都・神奈川県・千葉県・埼玉県など幅広いエリアを網羅。
圧倒的物件登録数ならカシチ不動産。簡単検索で理想の物件が必ずみつかる!
用途・坪数などお客様のご要望に応じてご提案させていただきます。
貸地・貸事業用地・貸倉庫・貸工場のことならお気軽にご相談ください!

03-3341-2841
受付時間9:30〜18:00
定休日土・日・祝日
問合わせ・ご相談はこちら
貴社に合う物件ご紹介します