【貸倉庫】埼玉県草加市青柳2丁目 約125坪 埼玉県草加市青柳2丁目|80.96万円(税込)の倉庫

倉庫

【貸倉庫】埼玉県草加市青柳2丁目 約125坪
お気に入り
賃料
80.96万円(税込)
6,476円
物件番号
kst0590
敷金/礼金
4ヶ月/1ヶ月
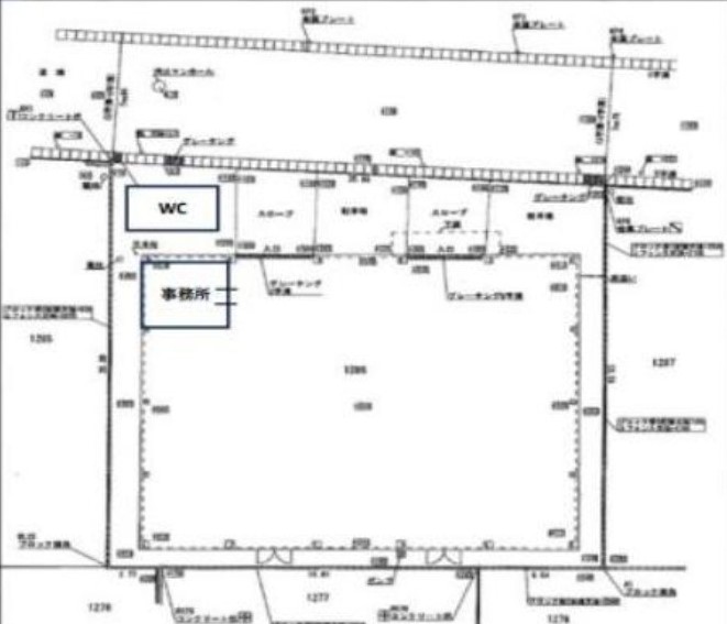
建物面積
413.22u
土地面積
-
坪数
-
所在地
埼玉県草加市青柳2丁目 この地域周辺の物件を見る
交通
東武伊勢崎線 獨協大学前 徒歩38分 外環自動車道「三郷西」ICまで約2.7q
ここがおすすめ

・平屋建て
・コンテナ横付可
・200vフォークリフト充電設備あり
・天井高:5.20〜8.54
・24時間365日使用可


  •  -
  •  -
  •  -
お問い合わせ、資料請求、見学のお申し込みはこちらから

電話をかける(携帯・PHS可)
03-3341-2841
「ホームページを見た」とお伝え下さい。

お問い合わせ番号をお伝えください
kst0590

内見予約
お問合せ

おすすめポイント

特徴
  • 倉庫
  • 天井高5m以上
  • 平屋建
  • 事務所付き
  • 高速/ICまで5q圏内
  • リサイクル業不可
  • 産廃業不可
  • 残土不可
  • ※不動産業者様 不可
コメント ・償却:解約時1ヶ月

物件概要

階数 地上1階建 用途地域 -
構造 軽量鉄骨造 建ぺい率 - %
築年数 1970年11月築 容積率 - %
土地面積 - (-) 建物面積 413.22u
テラス面積 - 専用庭面積 -
現況 - 引渡し 相談
土地権利 普通借地権(賃借権) 期間:3年 採光面 -
駐車場 駐輪場 -
法令上の制限 - 都市計画 -
地目 - 地勢 平坦
接道状況 - 総戸数 -
私道負担面積 - セットバック -
建築確認番号
取引態様 仲介
情報更新日 2026年05月12日 次回更新日 2026年05月26日
情報更新日:2026年05月12日 次回更新予定日:2026年05月26日
※各種情報と差異がある場合は現況優先となります
事業用不動産の売買サイト
お問い合わせ、資料請求、見学のお申し込みはこちらから

電話をかける(携帯・PHS可)
03-3341-2841
「ホームページを見た」とお伝え下さい。

お問い合わせ番号をお伝えください
kst0590

内見予約
お問合せ
  • こちらの物件を見たお客様はこんな物件もチェックしています。
  • お気に入り物件

同じ価格帯の物件はこちら

広さの近い物件はこちら

同じ学区の物件はこちら

電話でお問い合わせ
株式会社オン・フォワード

電話をかける

03-3341-2841

※「ホームページを見た」とお伝えください。
お問い合わせ番号をお伝えください
kst0590

お問い合わせ

お問い合わせ内容
お問合せ内容必須
【備考欄】
詳細な見学ご希望時間、ご質問、ご希望条件などがございましたらお聞かせ下さい。
(2000文字以内)
お客様情報
会社名 / 担当者名必須
連絡先必須 メールアドレス

※ご記入いただいたメールアドレス宛てに、お問合せ内容の確認メールをお送りいたします。
※Yahoo!メールなどのフリーメールをご利用の場合、迷惑メールフォルダに入る場合があります。
 迷惑メールのフォルダ・設定等をご確認下さい。
電話番号
FAX(任意)
※ご入力いただいたお客さまの個人情報は、「個人情報の取扱いについて」に基づき適正に取り扱います。
必ずお読みになり、同意の上お問い合わせください。

お気軽にお問い合わせください

03-3341-2841
物件番号 kst0590
※「ホームページを見た」
とお伝え下さい。

お役立ち機能

このページを印刷する
貸倉庫・貸工場を探す
お役立ちコラム

カシチ不動産は貸地・貸倉庫・貸工場に
特化した事業用賃貸検索サイトです。

東京都・神奈川県・千葉県・埼玉県など幅広いエリアを網羅。
圧倒的物件登録数ならカシチ不動産。簡単検索で理想の物件が必ずみつかる!
用途・坪数などお客様のご要望に応じてご提案させていただきます。
貸地・貸事業用地・貸倉庫・貸工場のことならお気軽にご相談ください!

03-3341-2841
受付時間9:30〜18:00
定休日土・日・祝日
問合わせ・ご相談はこちら
貴社に合う物件ご紹介します